

항상 준공을 하고나면
구현해 내지 못한 아쉬움
끈질기게 지켜내지 못한 분함
임무를 완수하지 못했다는 자책감
을 짊어지곤 합니다.

물론 설계자인 나 자신의 자기만족을 못했다는 점에서
도의를 떠나 울적해지기도 하지만
공공의 입장에서...
아니, 전부 제쳐두고...

항상 이곳의 주 이용자가 될 어린이들이 주인이라며 부르짖지고 주장하지만
또 그네들을 위한 공간을 만들고
(그들이 좋아서 어쩔줄 모를 만한) 설레는 공간을 선사해주고픈 마음으로 시작을 하지만
결국은 경제의 논리와 행정의 질서(?)에 의해 무릎꿇고 말았던
끝내 실현하지 못해 훨씬 더 높은 만족감을 주지 못함에 미안해 합니다.


어찌되었건 또 속아파 낳은 자식이 하나 더 늘었습니다.
다행히도
도서관 팀장님과 주무관 분들의 열정으로
많은 분들이 찾아주시고 좋아해 주셨다는 소식을 전해들었고
개관식날 여러 분들이 좋아해 주시는 모습도 직접 보아서 한시름 놓았습니다.
부디...
아이들이 이 곳에서 더 큰 꿈을 키울 수 있는 작은 발판이 되었으면 합니다.
.
.
.
제대로 촬영된 사진이 없네요.
인스타에 폰사진 몇 컷 올렸습니다.
로그인 • Instagram
www.instagram.com
또, 많은 블로거 분들이 도서관 소개를 해주셨습니다. '꿈든솔' 검색해보시면 많은 사진 보실 수 있을거예요.
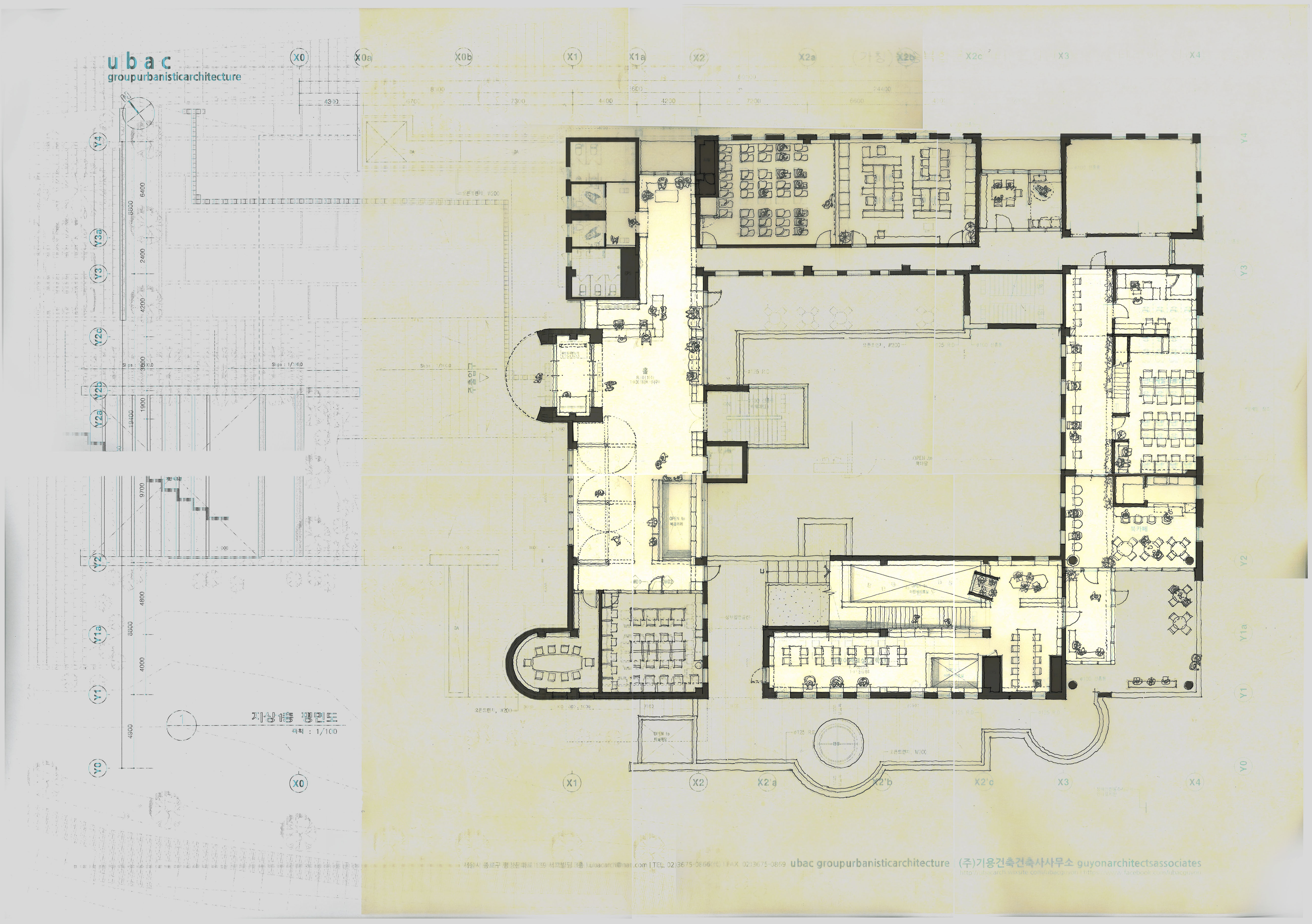
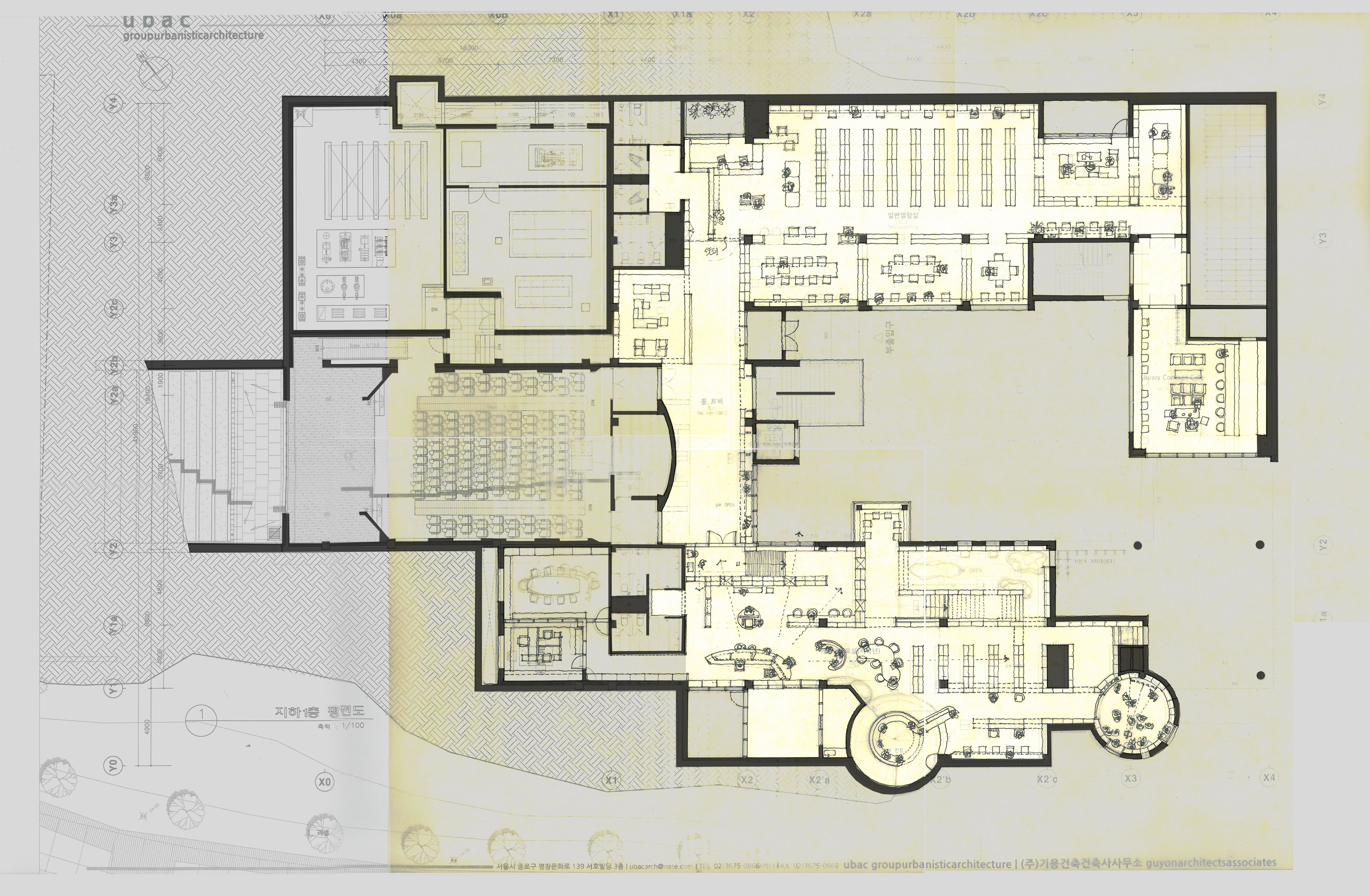
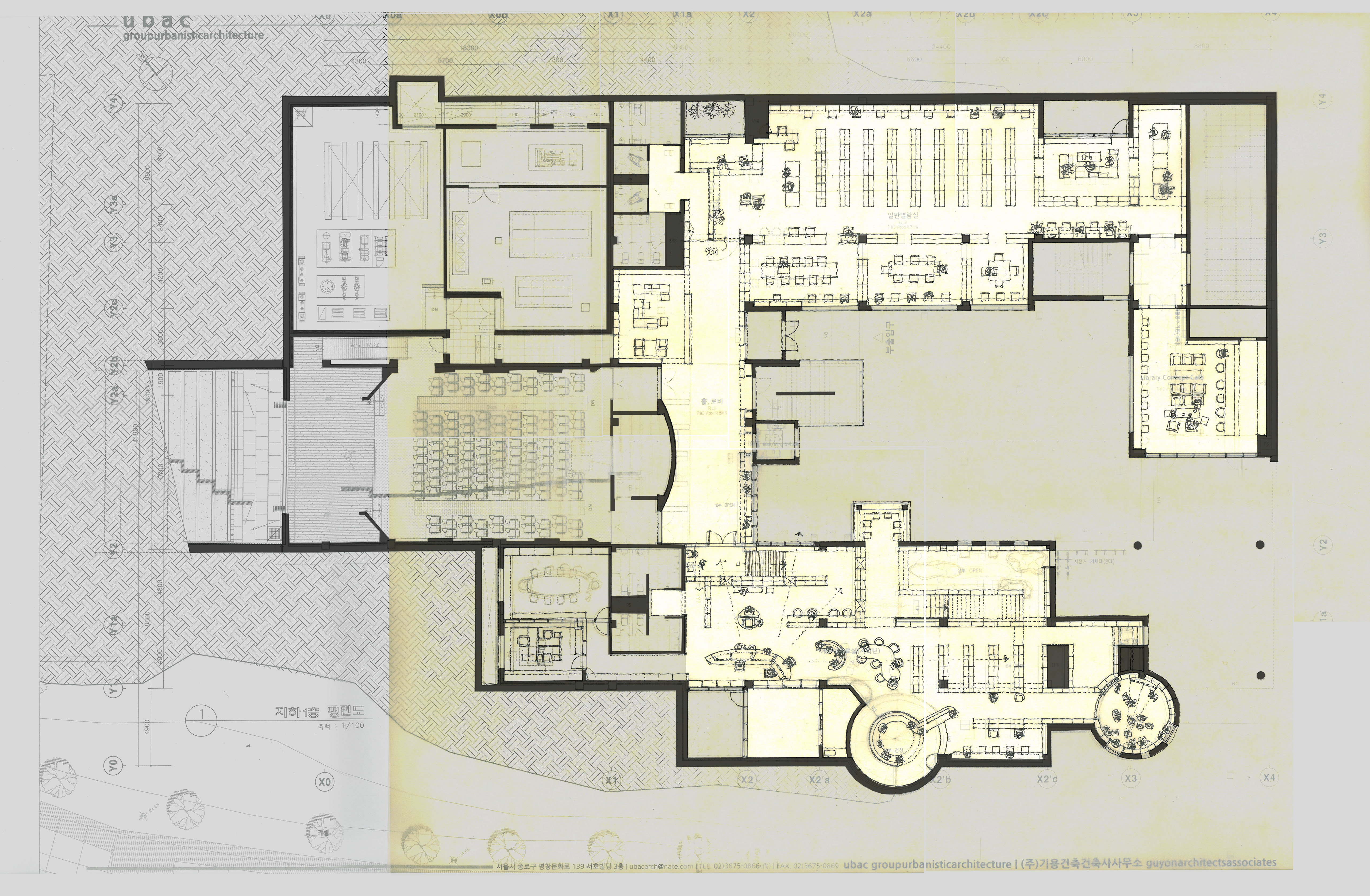
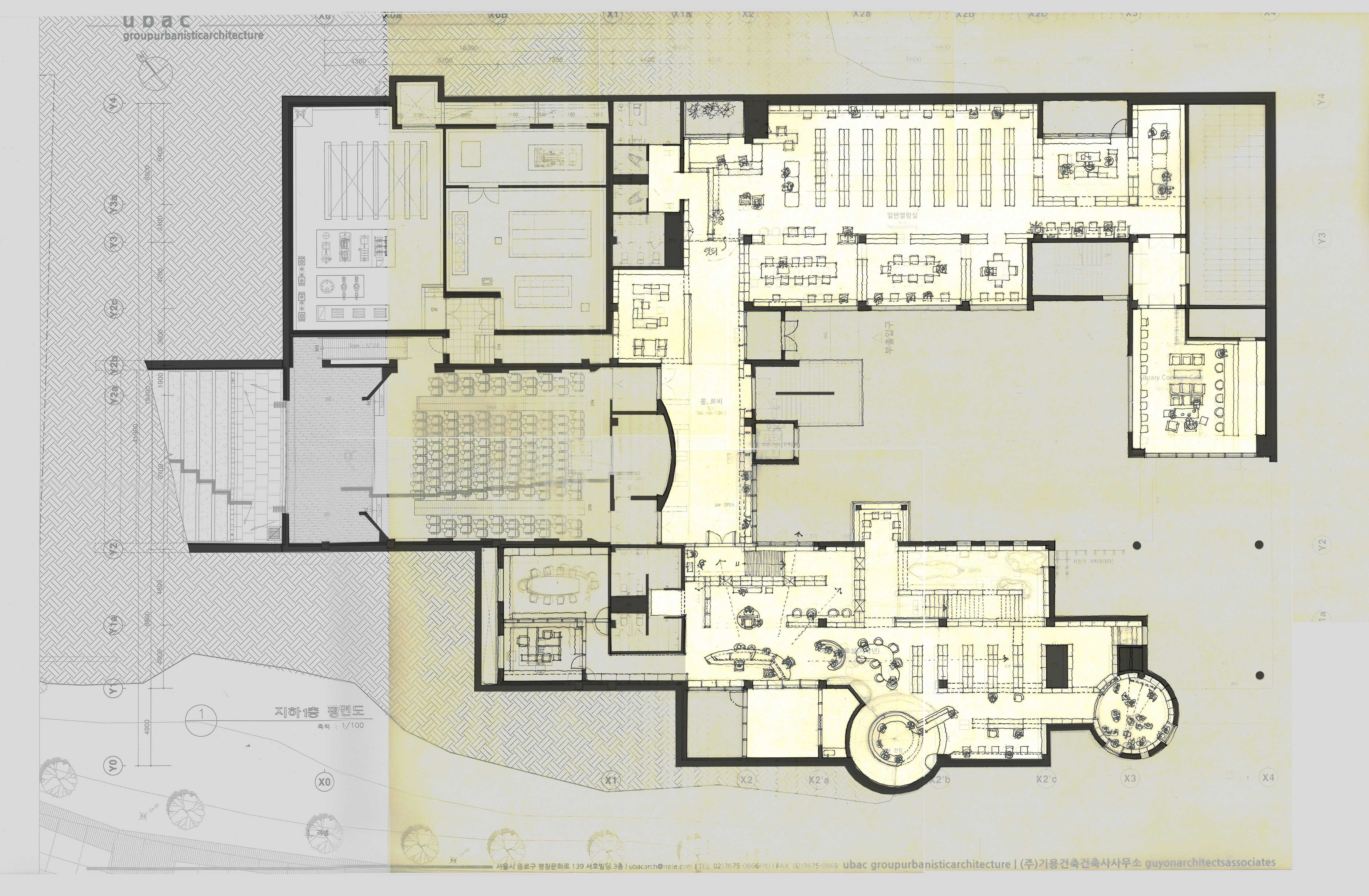
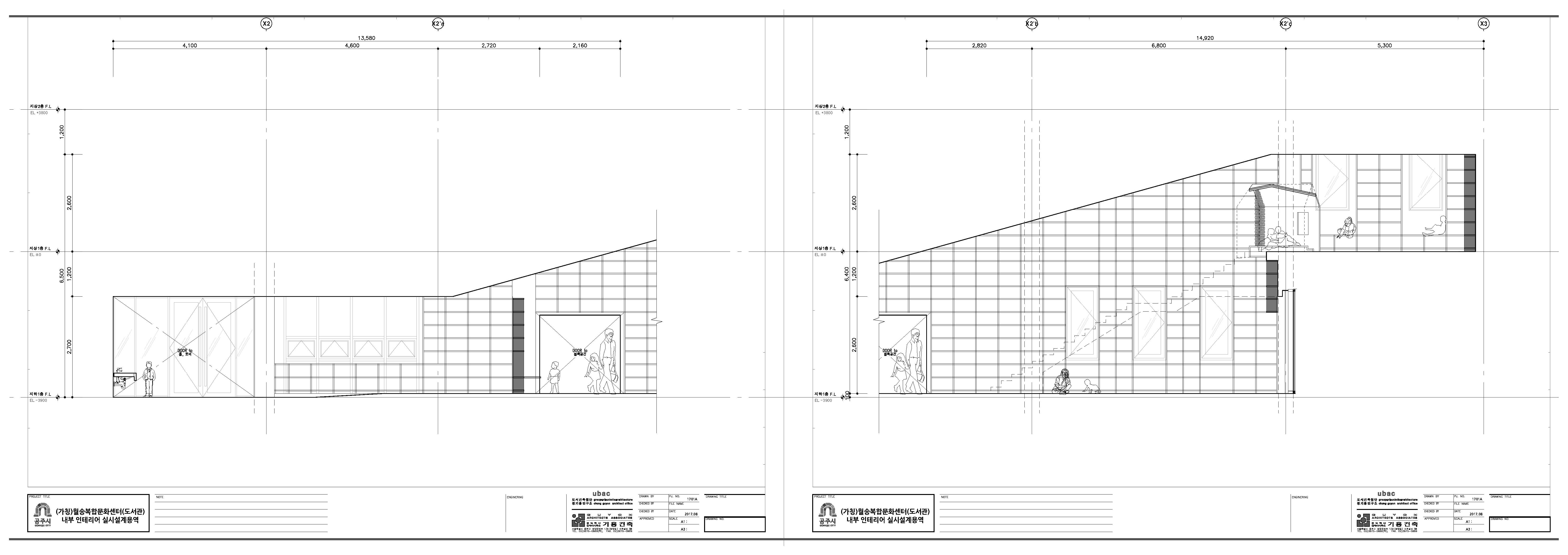
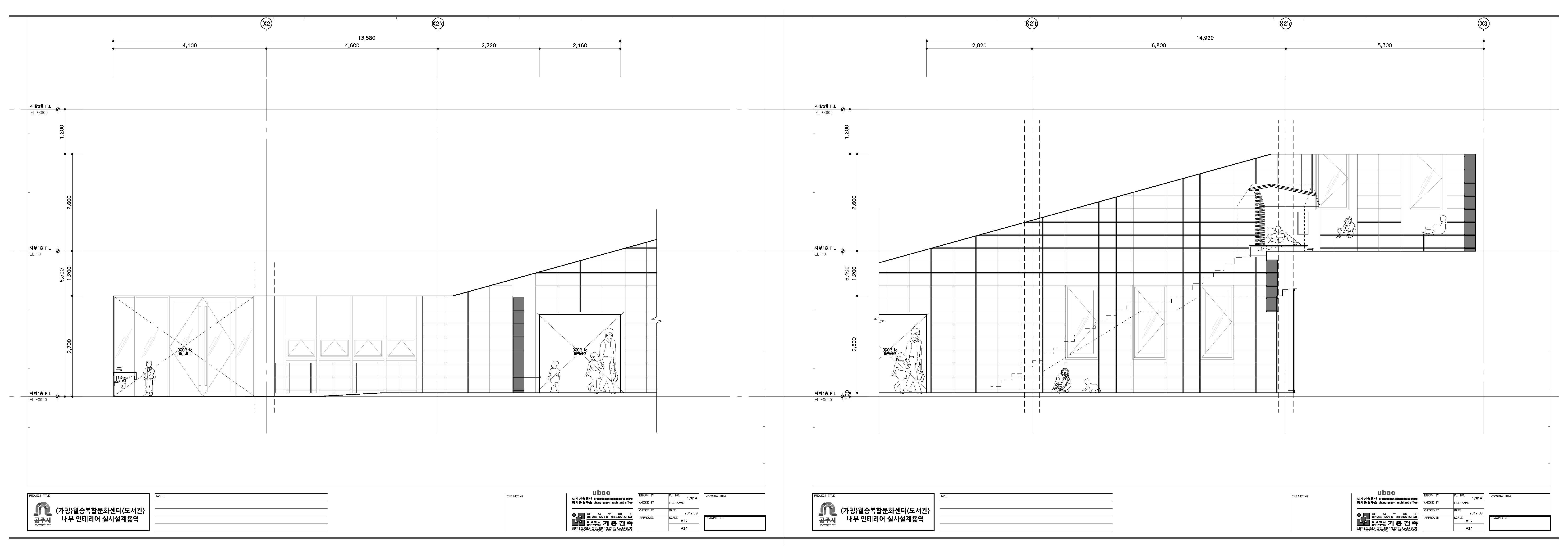
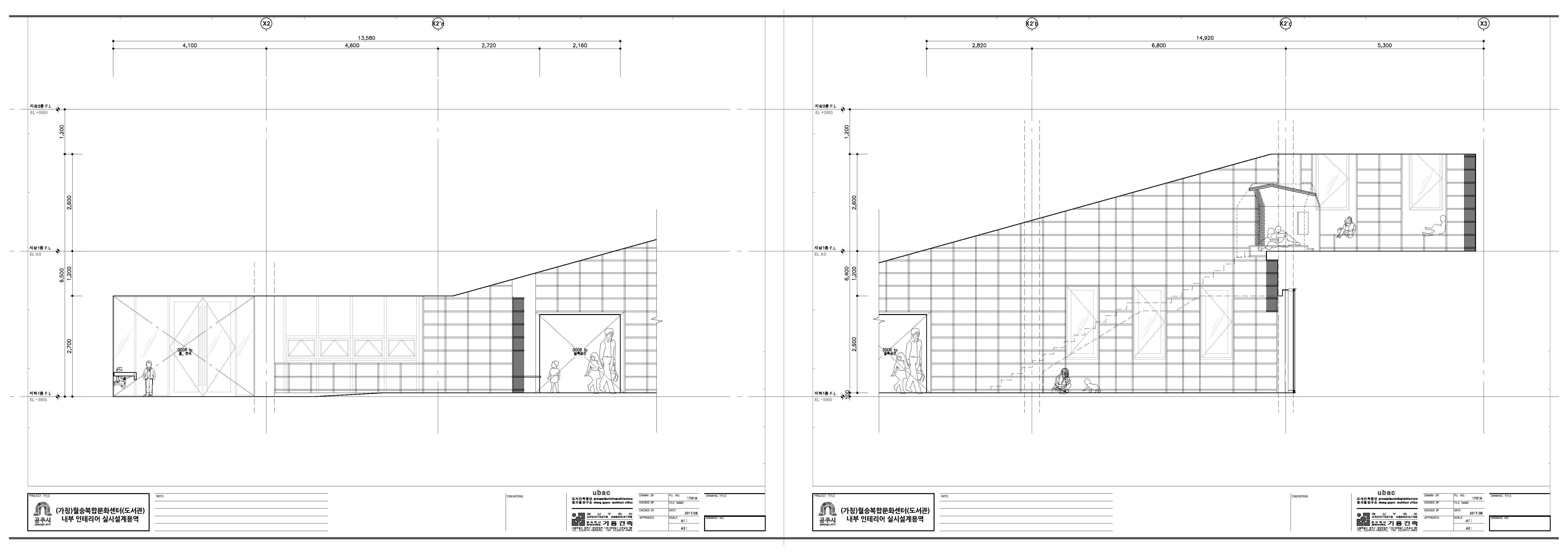
Project | 공주 기적의 도서관 인테리어 설계
Program | Library (for Children)
Client | Book Culture Foundation | Gongju-si
Location | Wolsong-dong, Gongju-si, South Korea
Area |
Site Area_6,000.0m2
Building Area_1,185.94m2
Floor Area_4,036.94m2
Floor_3 / -1
Status |
Construction Complete
Architects | GUYON Architects & Association
Landscape | Hangru
Structural Engineering | Interworld Structure
Civil Engineering | THE FORE
MEP Engineering | Daerim MEC
Energy Consulting | GY Consulting
Stage | HANIL TNC Co., Ltd.
Sketch | Kim Byeong Ok
Graphic | Kim Jae Hun
Copmputer Graphic | Kim Jae Hun
'작업 > EDUcation' 카테고리의 다른 글
| 미래 인재 양성을 위한 보탬이 될지도 모를(?) 작업... (4) | 2025.08.23 |
|---|---|
| 아니 서울에 기적의 도서관이 이게 처음이었다고요...? (0) | 2023.03.01 |
| 꿈든솔, 공주기적의도서관 (0) | 2020.06.15 |
| 서울예술대학교 안산캠퍼스 증축설계 (0) | 2019.10.15 |
| 계원예술대학교 생활관(계획안) (3) | 2016.12.16 |