*기용건축에서 기적의 도서관 신작이 나와서 함께 글 올립니다.
*납품된 프로젝트 이기에 포맷 유지를 위해 개요 사항도 함께 기재합니다.










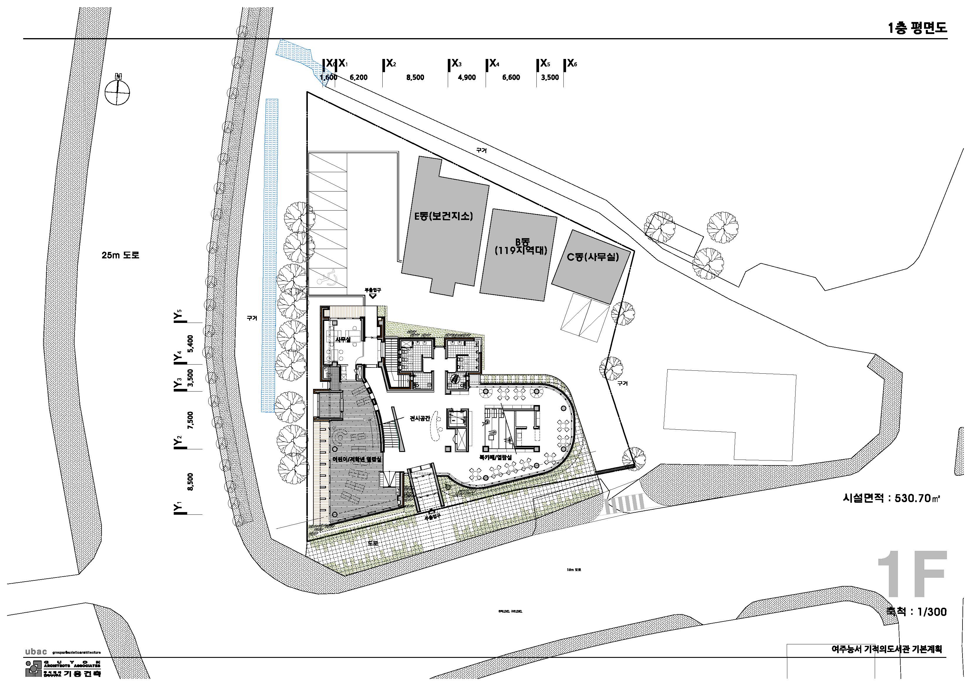
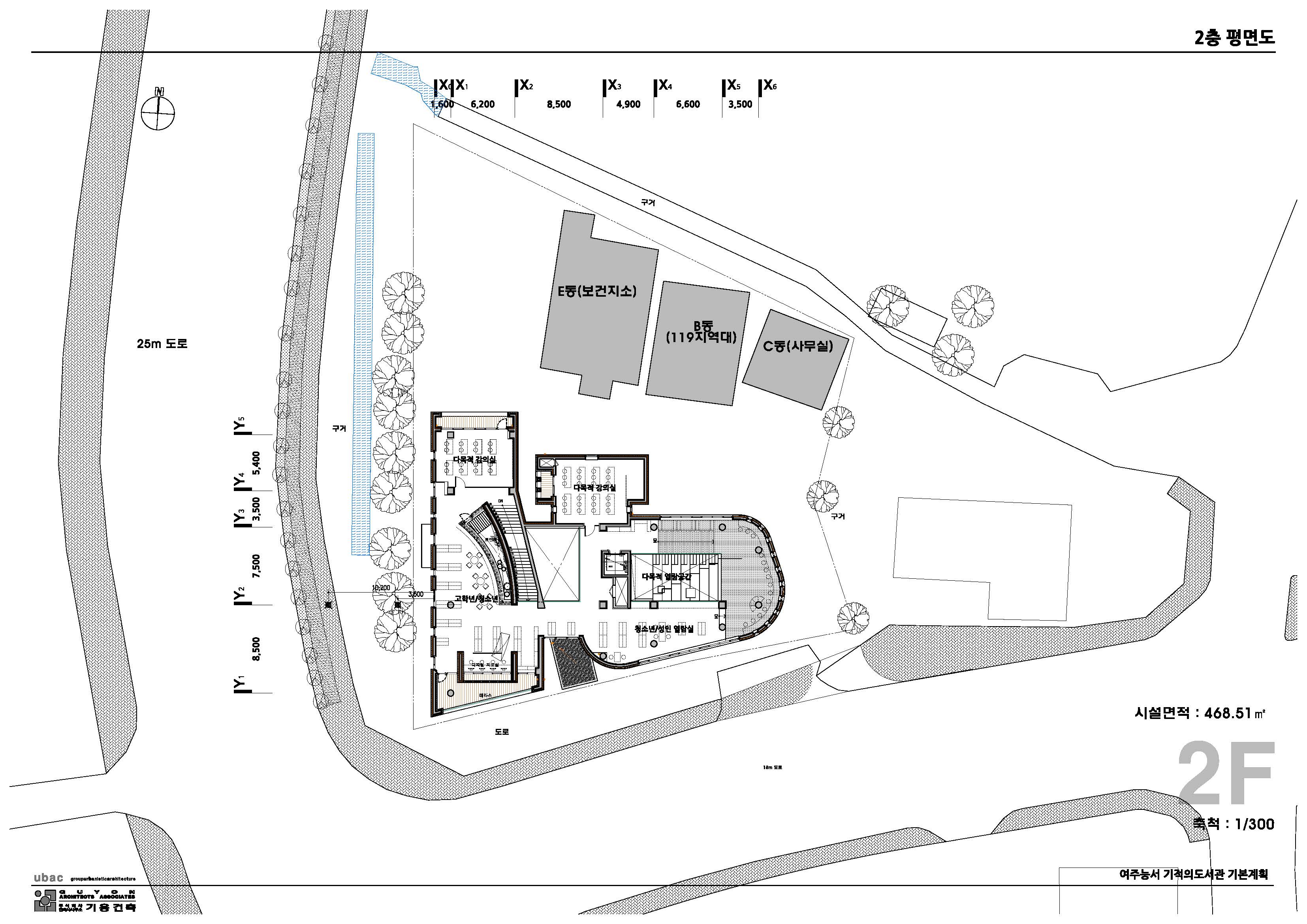
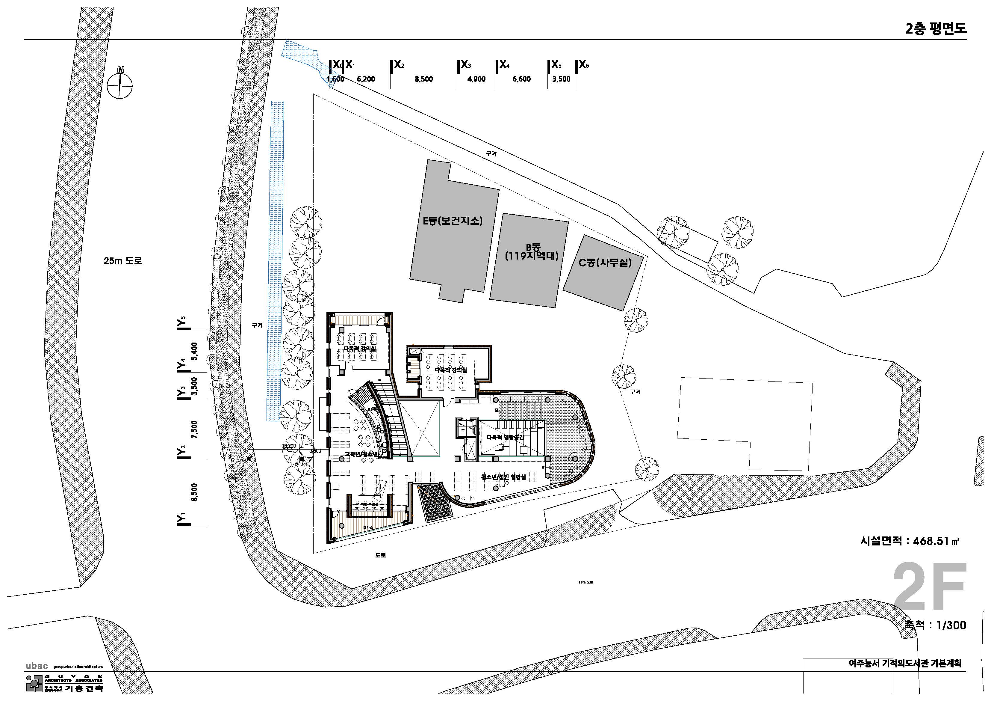
:: Project Summary
|
Program Educational Facility-Library for Children
Client Book Culture Foundation Yeoju-si, Korea
Location Yeoju, Gyeonggi-do, South Korea
Architects GUYON Architects & Associates
Project Team Joonho Kim, Kyuheong Kwon
Model Kyuheong Kwon
Photographs Jaehun Kim
|
Status SD / DD / [CD] / UC Construction Document Complete
Area Site Area 1,781m2
Building Area 878.40m2
Floor Area 1,507.94m2
Floor 2 / -1
|
from
culture F/A/C/T/O/R/Y
+82 (O)1O 2O82 2O32
반응형
'이야기' 카테고리의 다른 글
| 이게 아파트예요 여러분... (고덕 강일 1,5BL) (0) | 2019.09.03 |
|---|---|
| 항상, 감사합니다.... 그런데요... (0) | 2019.09.03 |
| ISC 웹진 2019년 06월 vol.10 (0) | 2019.08.14 |
| 장항 농어촌공공도서관 부위별 사진 모음 (0) | 2019.06.14 |
| 어마무시한 YG 엔터테인먼트 신사옥 (0) | 2018.11.24 |