
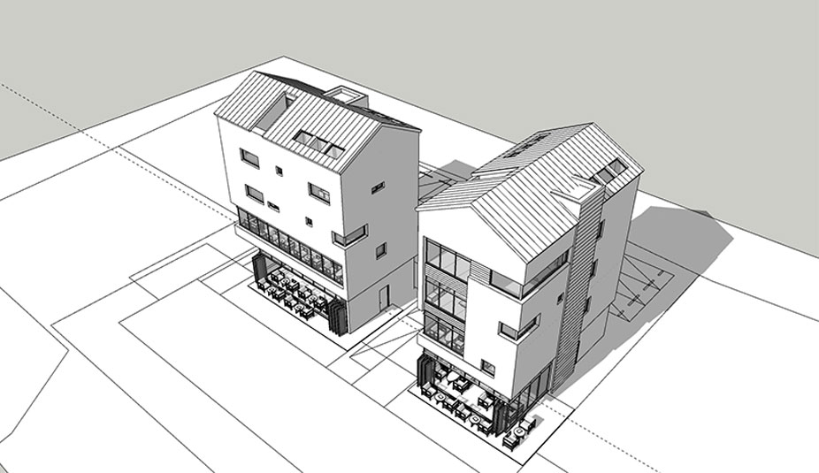
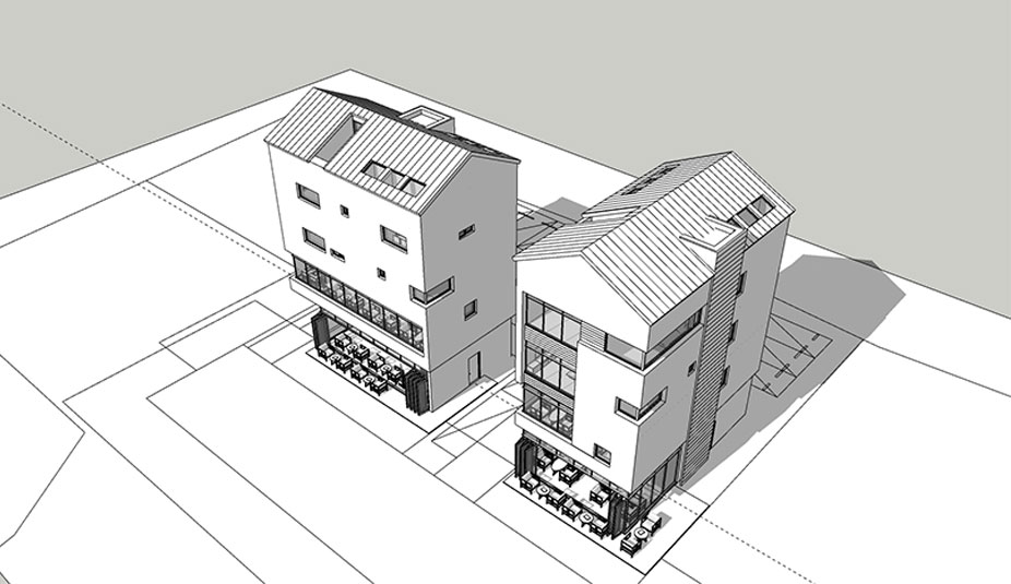
단지형 상가주택 내에 위치한
블록에 대하여 두 가지 타입의 배치 및 형태를 조금 더 디텔일하게 접근합니다.
건축을 위한 세부사항을 진행하기 위한 첫 걸음 이라 볼 수 있습니다.
다양함 속에서 단순하게
공동이면서 개개인의 아이덴티티는 발현 되어야 합니다.

초기에 검토되었던 대안들에 대한 스터디가 발전됩니다.
단지내 도로에서 느껴지는 모습과 단지의 분위기를 위한
그러면서도 각 집집마다의 개성도 필요할 듯 합니다.

차량은 되도록 보행공간을 피한 곳에 위치 단지내에서의 차량 본연의 역할만 수행하게 될 것입니다.

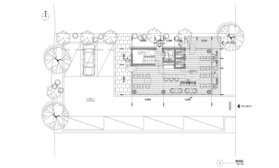
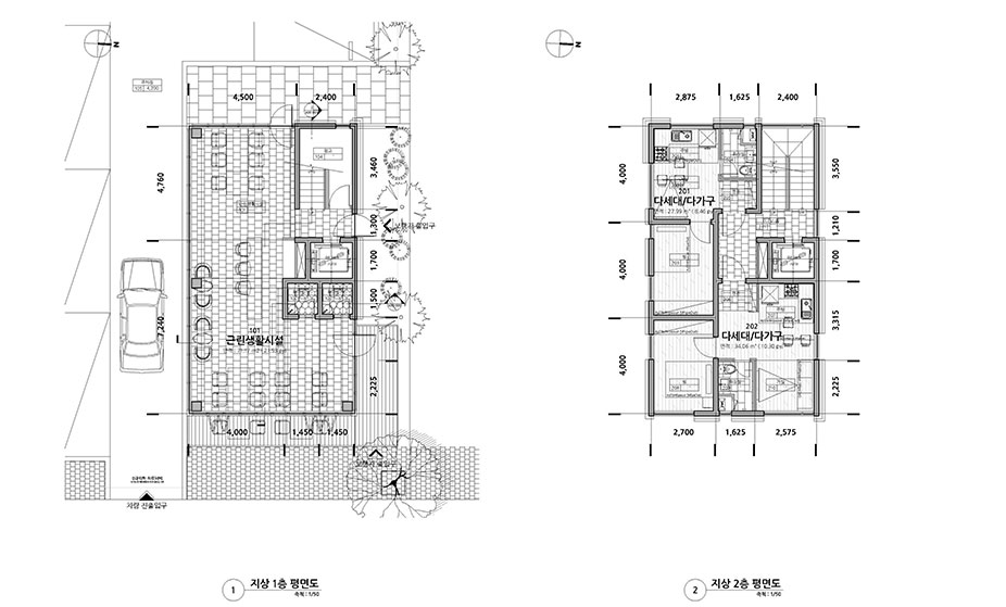
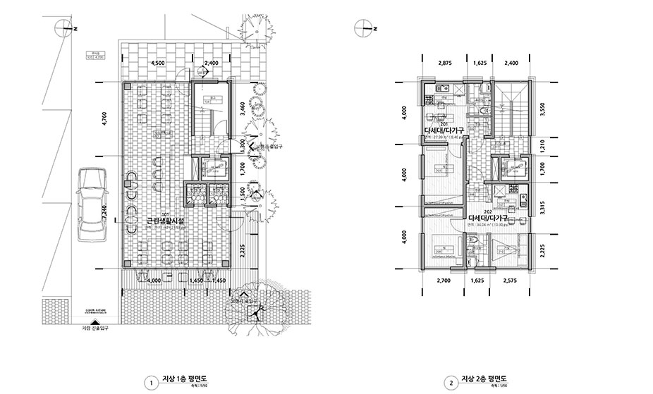
단지내 가로와 면한 1층에서는
출근전 커피한잔을 즐길 여유로움이
퇴근후 하루의 피로를 풀어줄 한 잔의 시원함을 누릴 수 있게 됩니다.
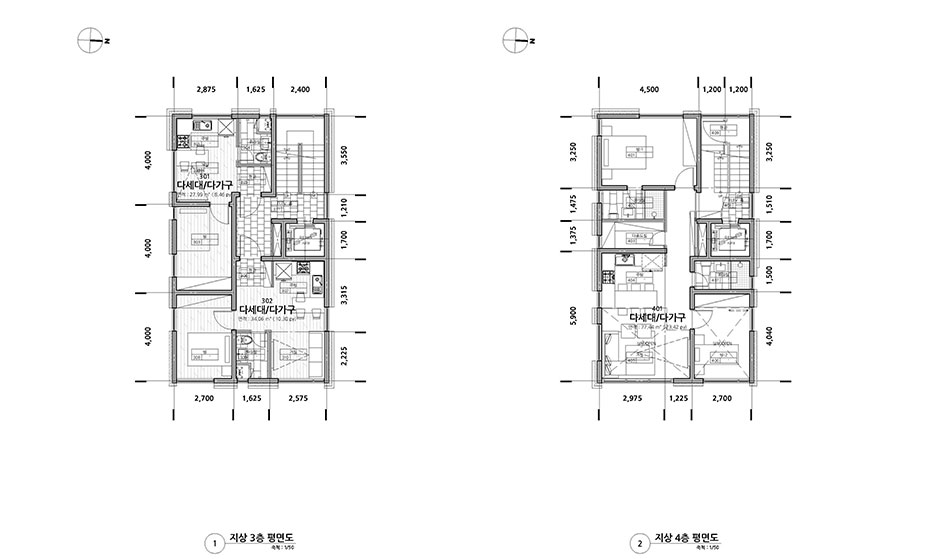
2,3층은
두 가지 타입의 세대가 위치합니다.

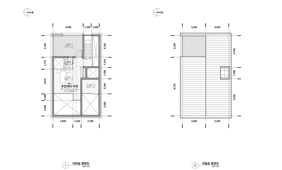
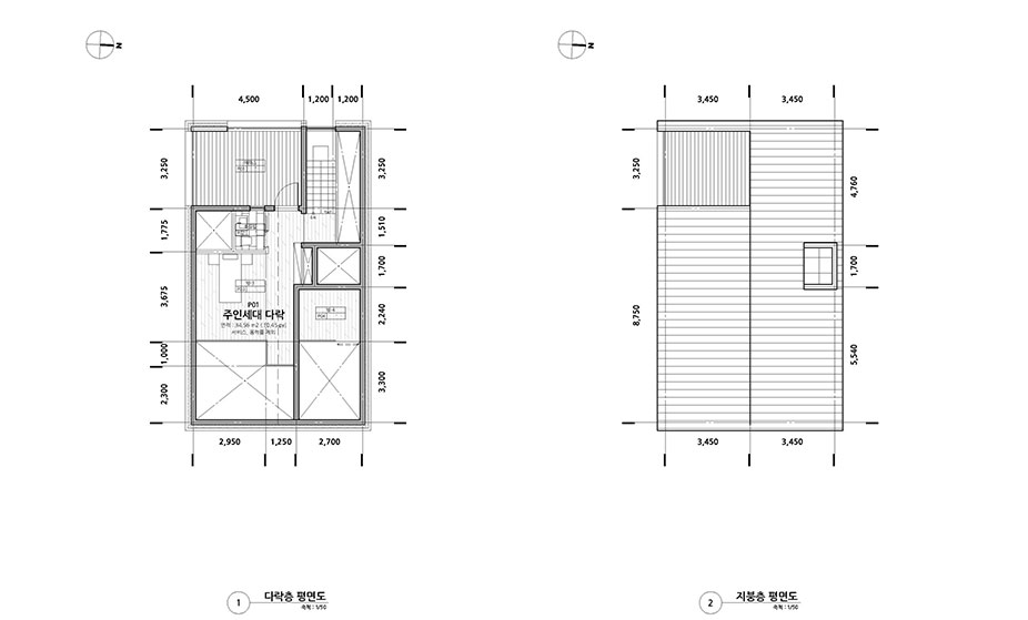
4층은
주인세대를 위한 층입니다.
다락을 포함한 복층형으로 공간의 깊이가 느껴지게 됩니다.

:: Project Summary
Program Mixed Use Building (Retail + Houses) Location Gwangju, Gyeonggi-do, South Korea Architects Pla architects Model Kim Hyung Kwon, Kim Jae Hun Video Edit Kim Jae Hun |
Status [SD] / DD / CD / UC Schematic Design Area Site Area 413.50m2 Building Area 82.60m2 Floor Area 362.20m2 Floor 4 / 0 |
"Keep your Beautiful moment"
We'll help...
culture FACTORY | 文化空場 | ㅁㅎㄱㅈ | mhgz
#urban #architecture #interior #furniture #signage #photography #simulation #culture #life #style
#urban #architecture #interior #furniture #signage #photography #simulation #culture #life #style
| from culture F/A/C/T/O/R/Y +82 (O)1O 2O82 2O32 |
|||||
![]() |
![]() |
![]() |
![]() |
![]() |
![]() |
반응형
'작업 > LIFE' 카테고리의 다른 글
| 小膳亭, 고마운이에게 드리는 작은 선물... (0) | 2023.10.22 |
|---|---|
| 어쩌면 하이엔드의 시작..?? (0) | 2023.03.05 |
| 송화리 타운하우스 (0) | 2016.10.13 |
| 분당 메모리얼파크 사옥 (0) | 2016.10.04 |
| 여주 주택 (0) | 2016.08.10 |





