누구나 마음속에 간직한 감사의 마음이 있을거라 생각합니다.
이번 프로젝트는 여러가지 면에서 의미 있는 작업이었습니다.
'Keep Your Beautiful Moment...'
어찌보면 저희가 추구하는 바와 찰떡으로 맞아 떨어지는 궁합이 아니었을까 싶었을 정도니까요.
.
.
.
이미 장성한 두 자녀를 둔 부부를 위한 집입니다.
이젠 더 이상 바랄게 없는 삶이었을 것 같구요.
굳이 한가지 바람이라면 자녀가.. 그리고 자녀의 자녀가 성장해 가는 모습을 바라보는 재미(?)를 느낄수 있는 여생이지 않을까 생각되는데요.
그래서...
이 프로젝트의 목표가 하나씩 설정되어 가는 것 같습니다.
앞으로 이 집에서는 어떤 모습들이 그려질지 궁금해집니다.
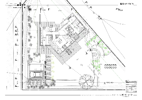
우리가 만난 땅의 모습입니다.
대부분의 땅이 그렇듯 깔끔하게 정리되어있는 필지였습니다.
조금 특이한 점(?) 이라면 대지형상이 사각형의 모습이 아닌 삼각형 이라는 점...
경사가 심한 진입도로
계곡...
이 땅에 어떤 건축물을 지어 올릴지 고민이 시작됩니다.




진입도로의 경사는 상당히 경사가 심합니다.
도로와 높이차이가 상당히 높고 삼각형 모양의 기하학형 대지의 형상
대지의 동측에서 남측으로 대지를 따라 흐르는 계곡
주변의 자원들을 어떻게 이용할 것인지도 주요 고려사항이겠네요.
계획의 초반에 건축주와 많은 이야기를 합니다.


땅의 형상과 조건이 특이하기도 하고 다양한 대안에 대한 아이디어를 내놓습니다.
요구되는 실들의 크기와 면적
외부공간과 내부공간의 관계
대지의 활용정도...
.
.
.
먼저 쓰임새에 대한 고민이 큰 데...
현재로서는 이곳에 완전히 이주보다는 휴식과 충전의 기능이 우선해야 합니다.
접근성이 좋아진 요즘은 주말주택 등의 개념이 많이 보편화 되어 있기에 여름, 겨울철 휴가뿐만 아니라 중간중간의 일정기간을 이곳에서 힐링을 할 수 있는 공간이 필요했습니다.


서쪽에서 동쪽을 향해 진입해 들어오는 도로는 대지와 만나는 고저차가 급격한 경사도만큼이나 다양합니다.
우리가 자리잡고 관계할 배치와 관련된 요소이기도 하죠.


대지의 도로 반대편으로는 계곡이 흐르고 있습니다.
여름철 산장 계곡에 뒤쳐지지 않는 훌륭한 쉼터 역할이 가능할 것으로 보입니다.




Program | Single House
Client | Personal
Location | Namyangju-si, Gyeonggi-do, Republic of Korea
Area |
Site Area_1,006.60m2
Building Area_152.18m2
Floor Area_1666.70m2
Floor_2 / -0
Status |
SD / [DD] / CD / UC
Design Development
Architects | ㅁㅎㄱㅈ
Copmputer Graphic | Kim Jae Hun, Hong Seock Hyun
"Keep your Beautiful moment"
#urban #architecture #interior #furniture #signage #photography #simulation #culture #life #style
| from culture F/A/C/T/O/R/Y +82 (O)1O 2O82 2O32 |
|||||
![]() |
![]() |
![]() |
![]() |
![]() |
![]() |
'작업 > LIFE' 카테고리의 다른 글
| 부모님의 은밀한(?) 사생활을 응원합니다 (0) | 2023.11.21 |
|---|---|
| 어쩌면 하이엔드의 시작..?? (0) | 2023.03.05 |
| 꽃밭에는 꽃들이 모여 살구요, 우리들은... (0) | 2020.10.31 |
| 송화리 타운하우스 (0) | 2016.10.13 |
| 분당 메모리얼파크 사옥 (0) | 2016.10.04 |





