샐러드에 대한 인식을 바꾸어 주었던 작업이 있었습니다.
2022.04.15 - [작업들/최근작업] - 이건 머 다이어트의 적 아닌가 싶습니다.
다이어트 하자고 먹는 샐러드 였던 것이... 이래도 되나 싶은 비주얼로 다가왔었던 샐러드스푼..
운동하는 친구들도 자주 찾아가곤 했었구요.
.
.
.
어느날... 선 대표에게서 연락이 왔습니다.
이번엔 부산 이라고...
그런데 시간이 없다고...
ㅇㅇ..? 현황도, 규모도 아는게 없는데 무얼....???
영화에서나 나올법한 긴장이 흐르고 있습니다.

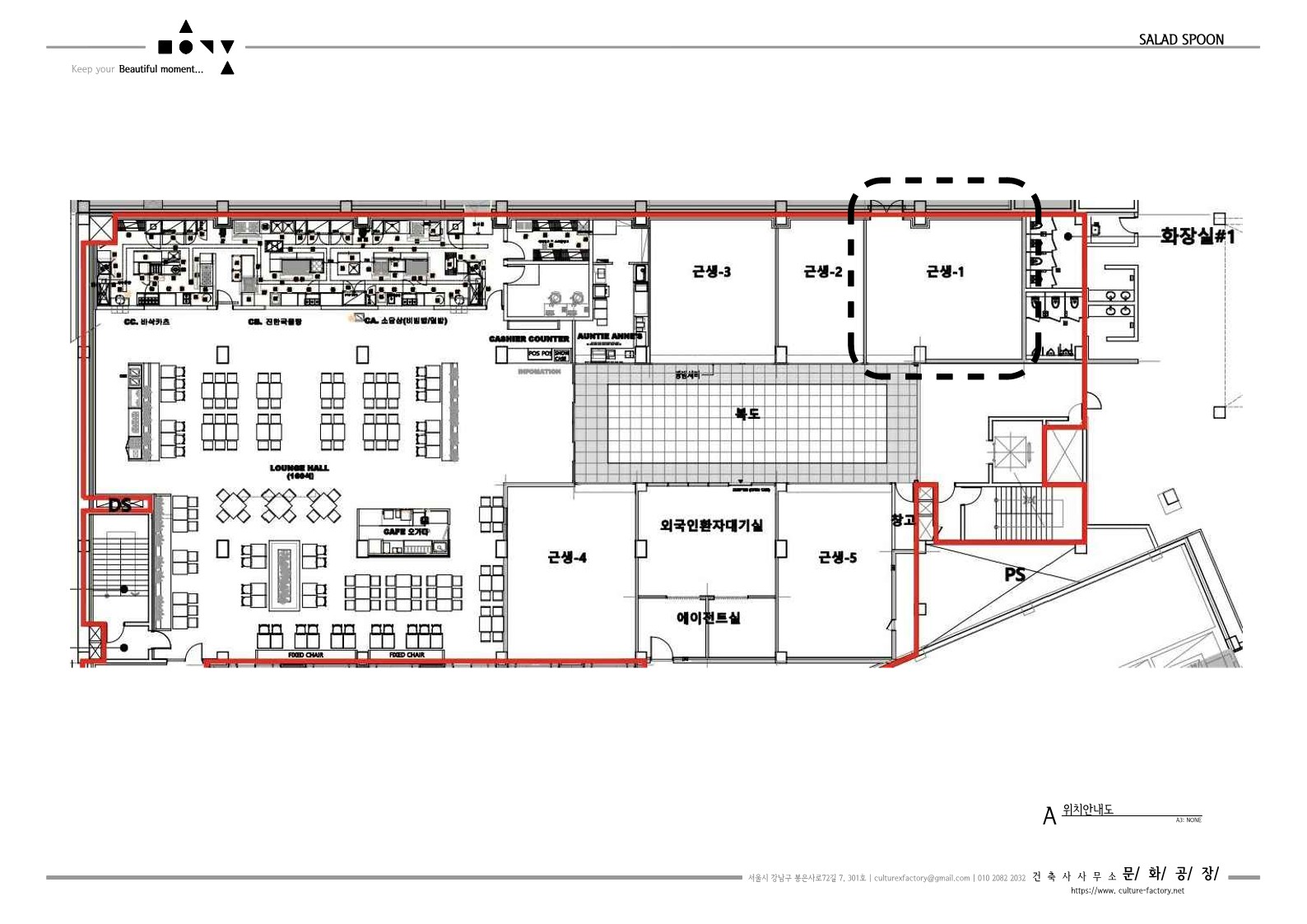
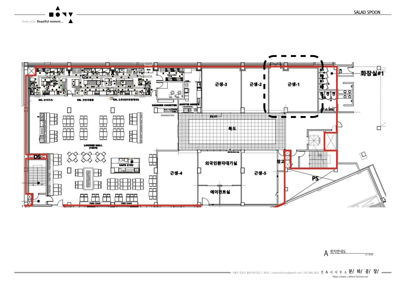
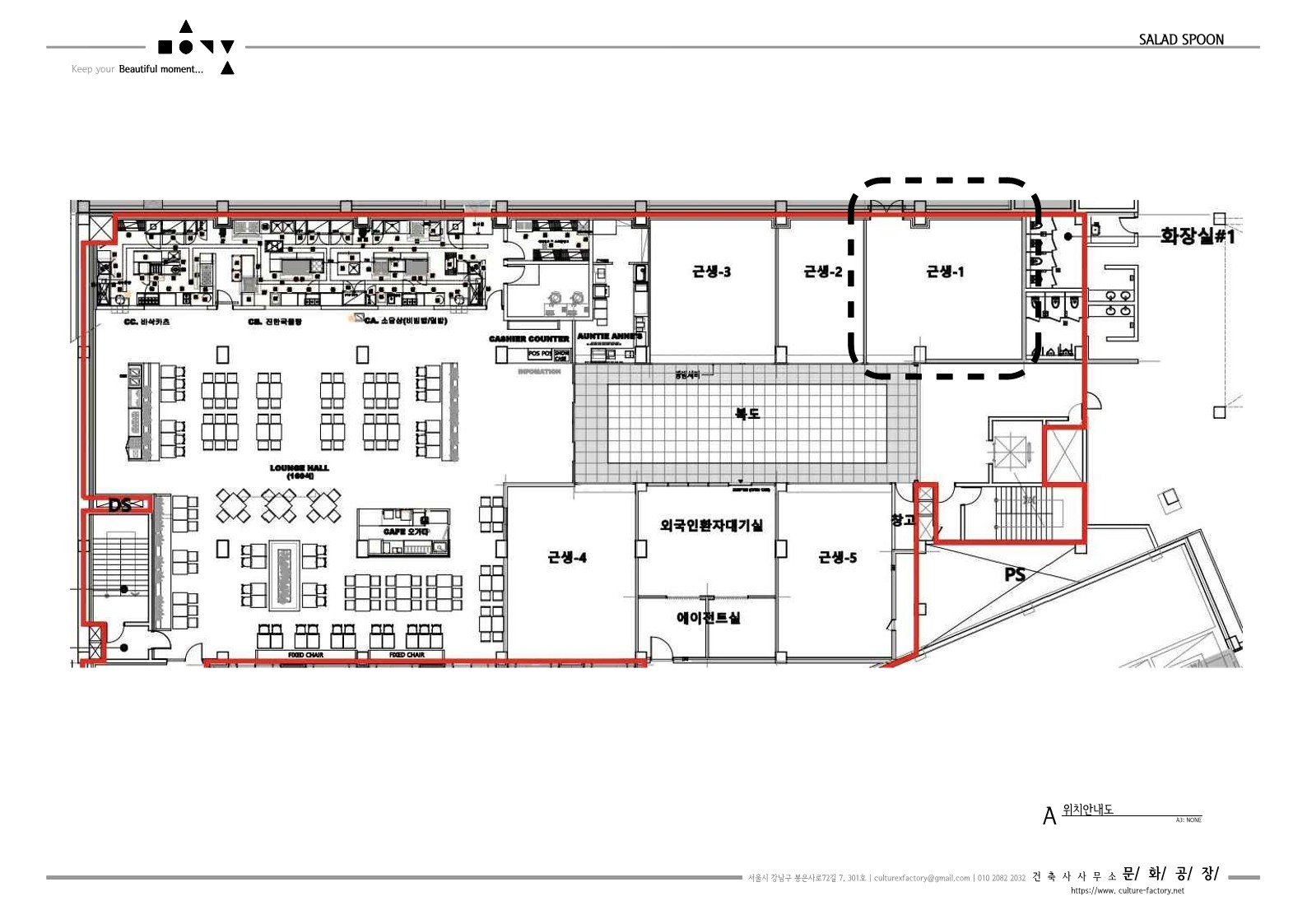
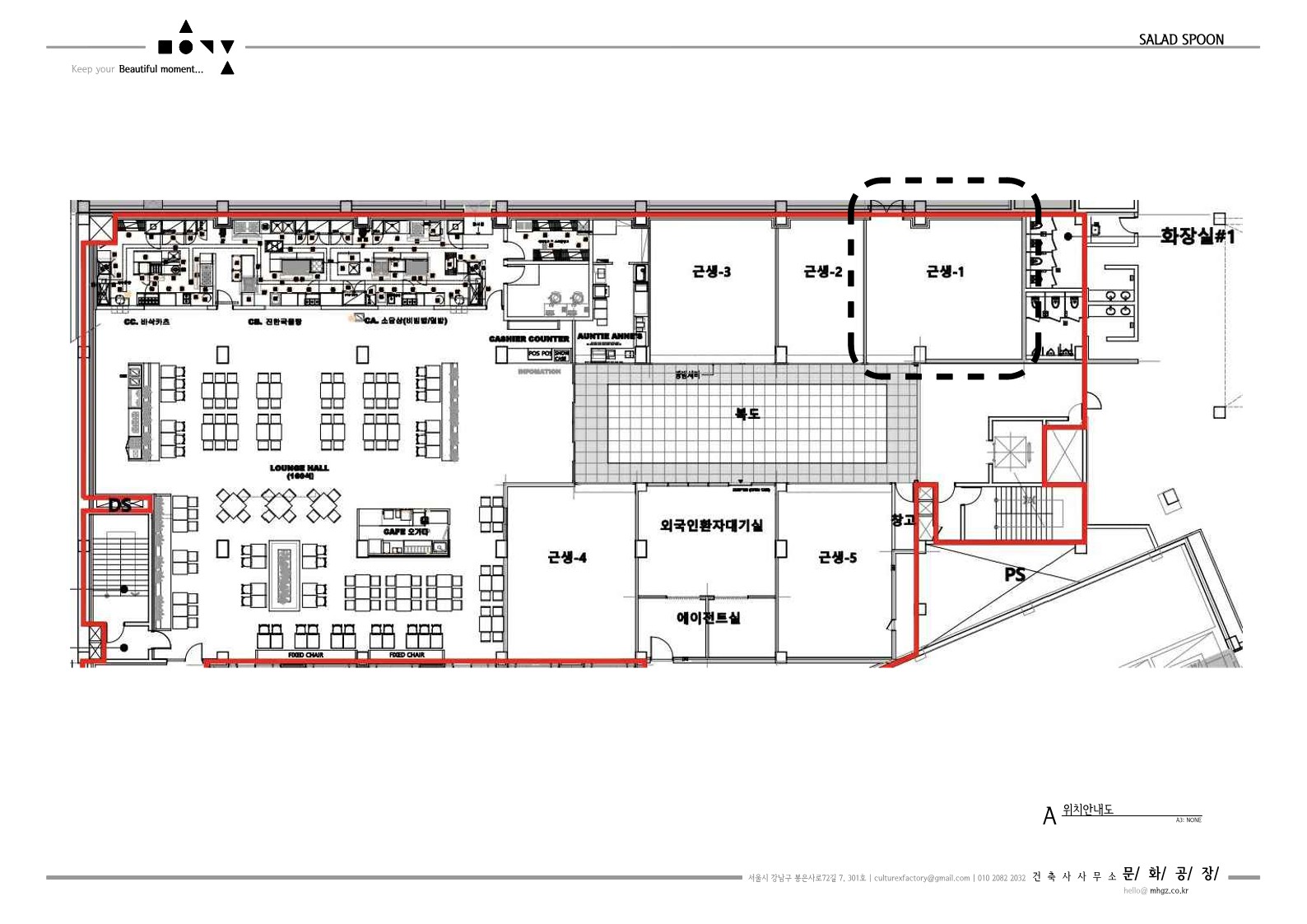
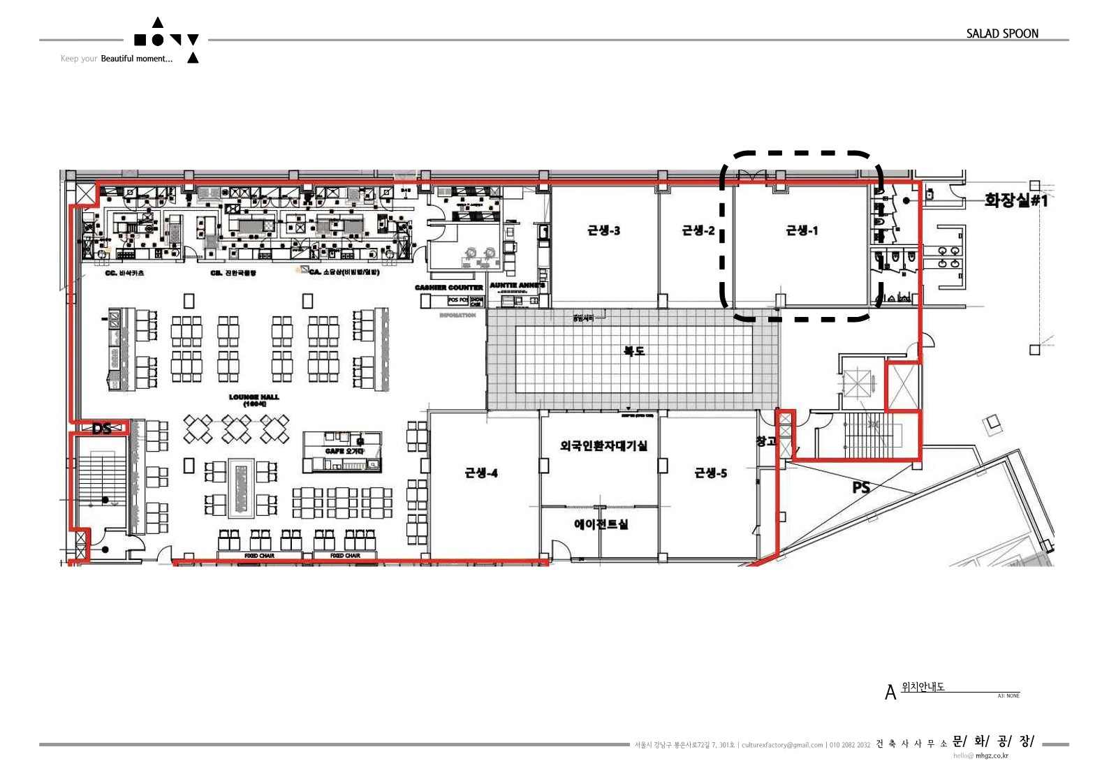
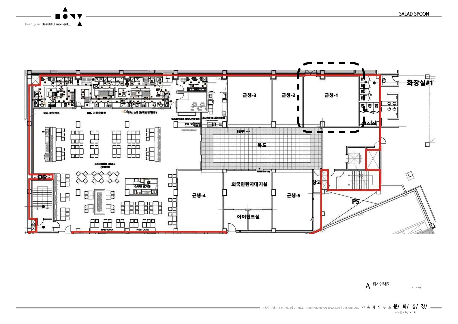
어찌어찌 해서 우리 샐러드스푼이 들어갈 장소에 대한 정보(?)를 받았습니다.
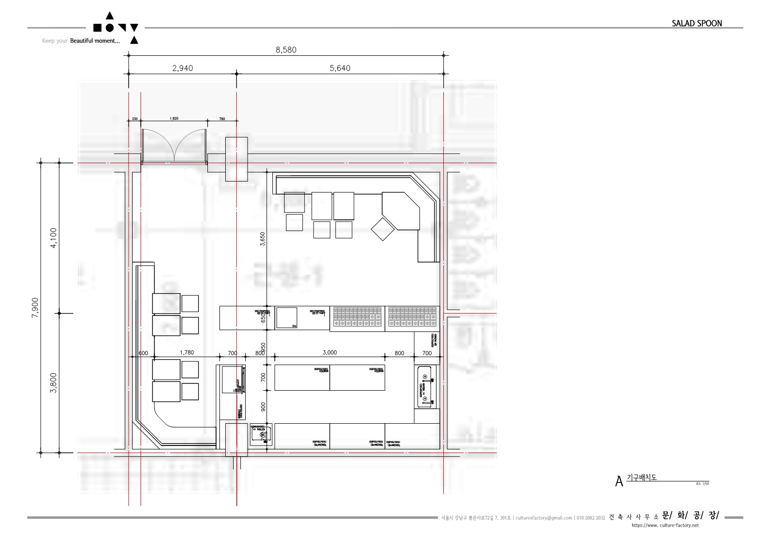
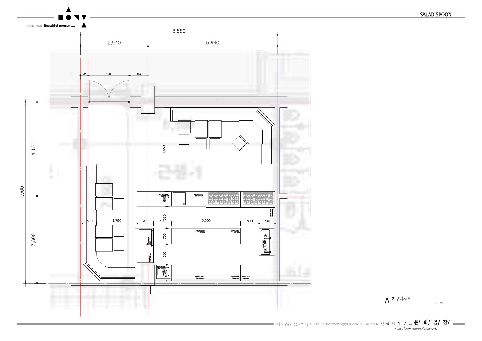
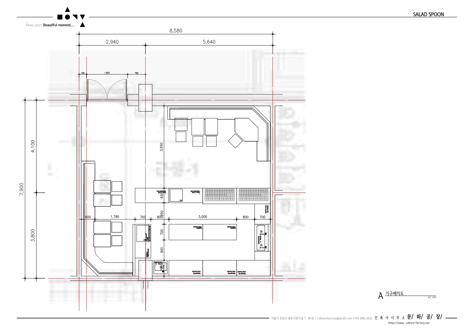
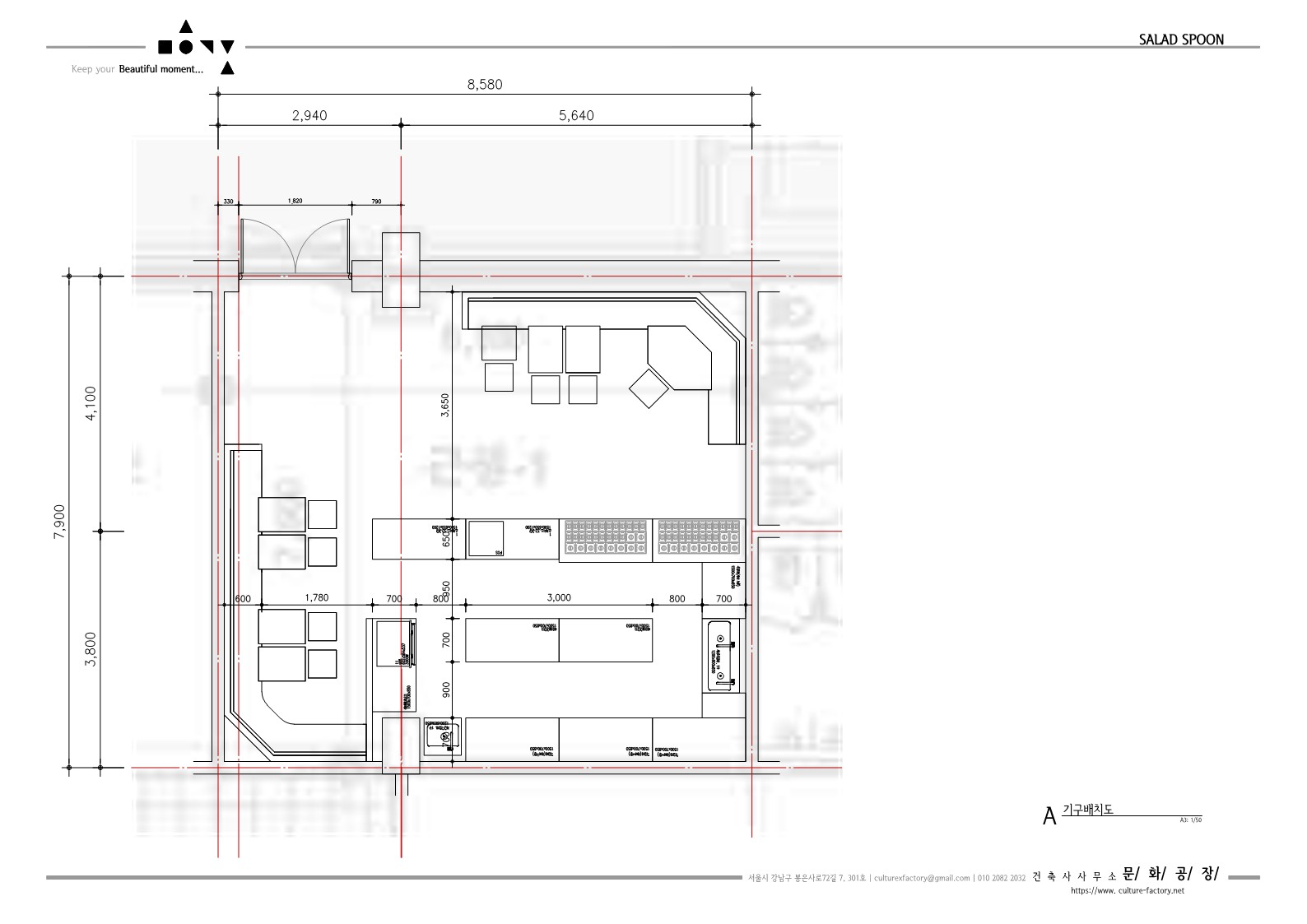
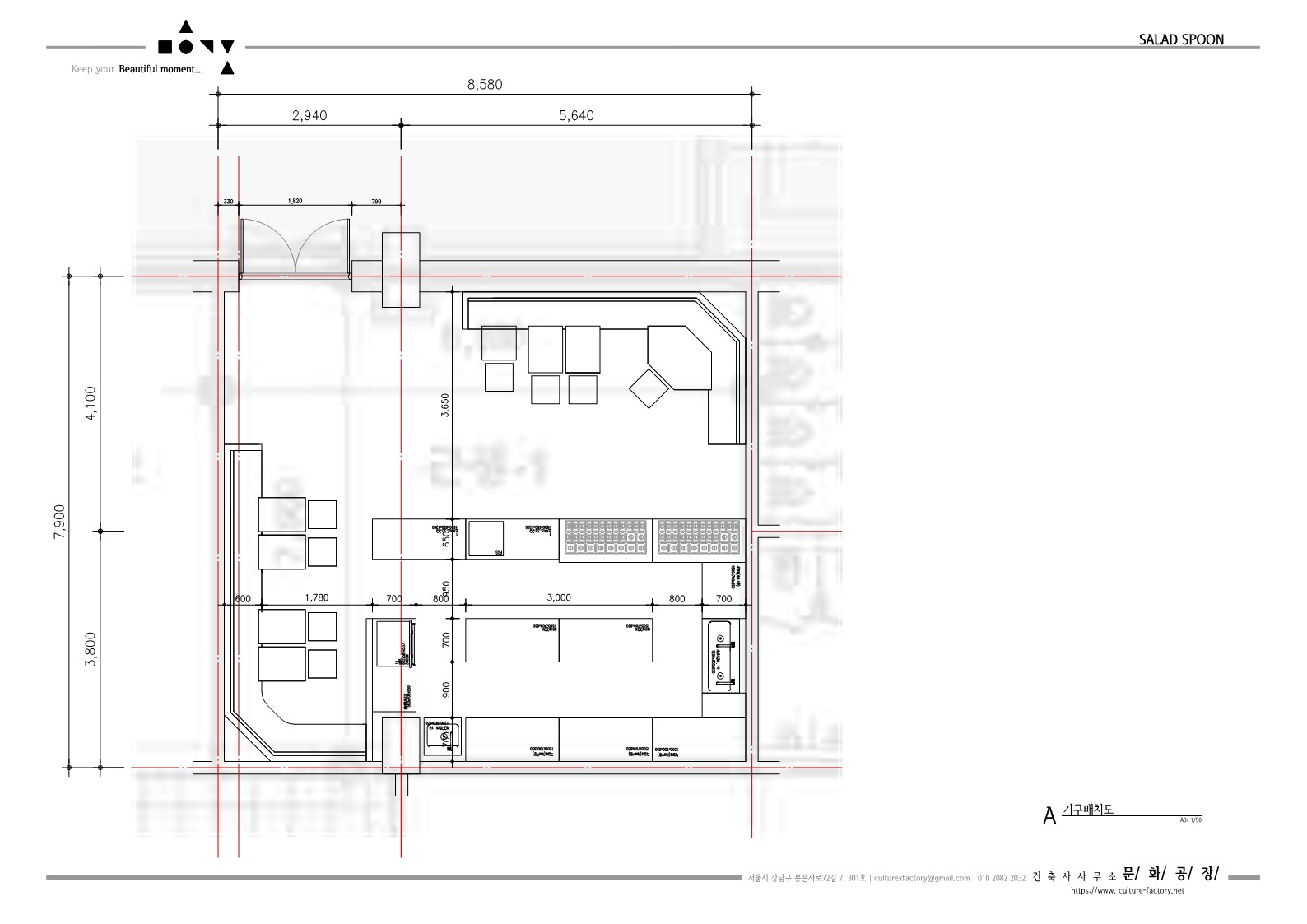
기본자료와 정보를 바탕으로 몇가지 대안을 작성합니다.
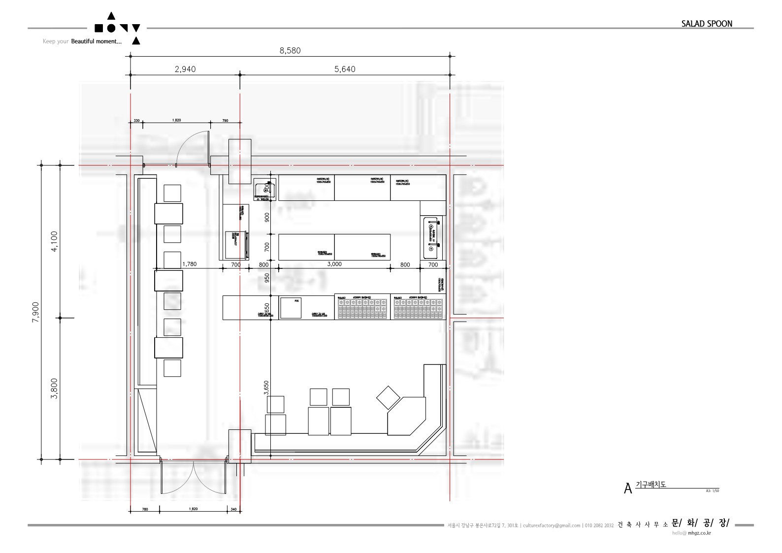
우선 미팅이 급하기에 [Salad Spoon, Song-do] 베이스로 작업을 시작합니다.
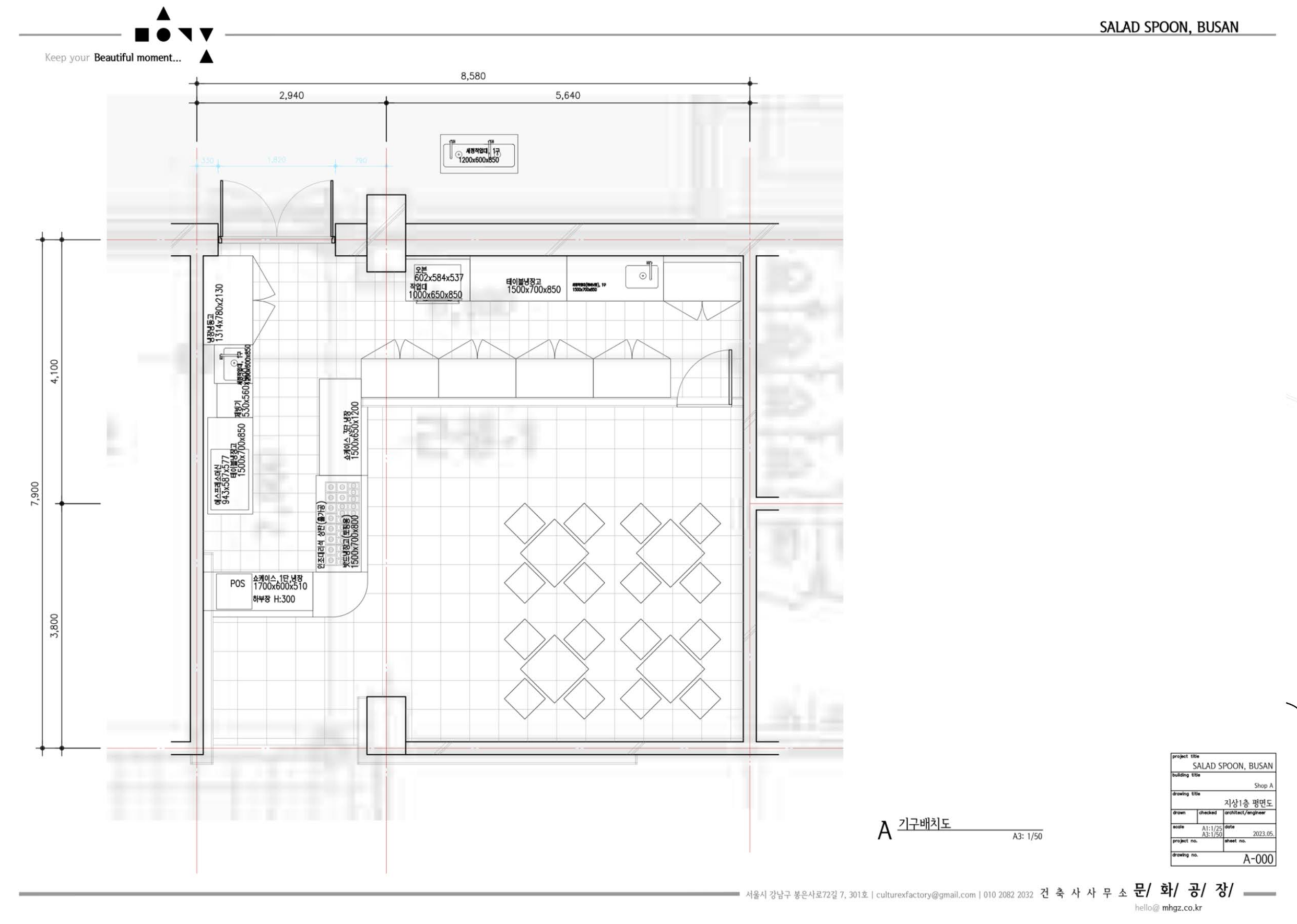
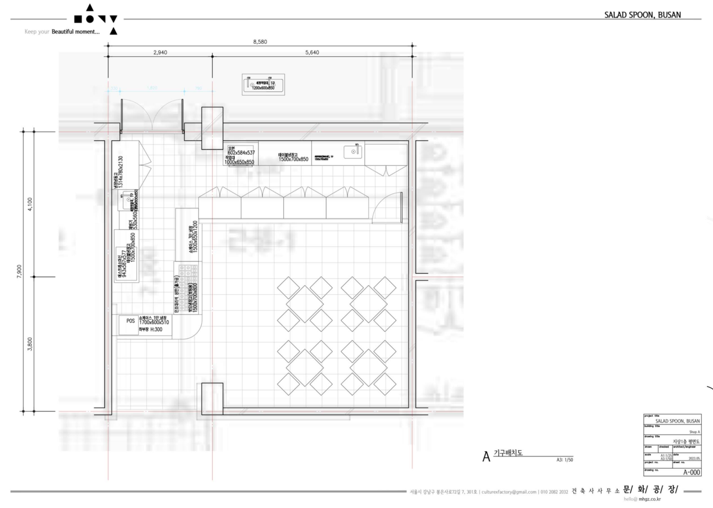
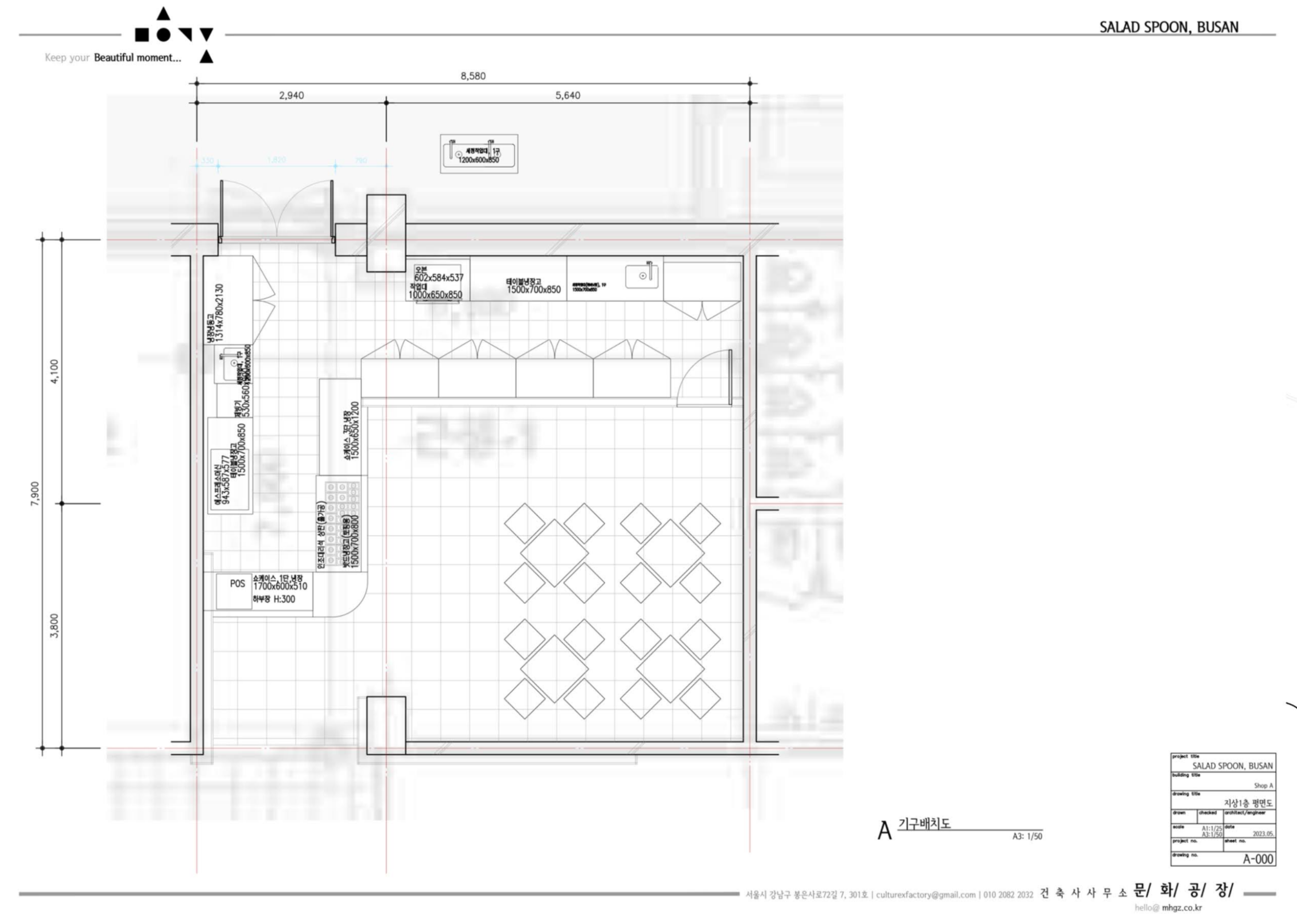
출입구가 전면, 후면 2개소 이구요. 규모는 송도때의 2배 이상입니다.



부산 지점에 운영을 하실 점장님(사실 관계가 어떻게 되는지가 확인이 안되었습니다.)
분 초가 부족한 급박한 마음으로 이메일, 카톡... 으로 보냈습니다.



주어진 조건이 그리 좋은 매장여건은 아닙니다.
좁은 입구에 어떻게 해야 고객을 모실수 있을 것인가 가 관건이죠.




어떤 모습으로 진행이 되어질까
지켜보아야 할 것 같네요.

Program | Food Court - Shop
Client | P & J Coperation
Location | Busan, South Korea
Architects | ㅁㅎㄱㅈ
Construction |
Model | Kim Jae hun
"Keep your Beautiful moment"
#urban #architecture #interior #furniture #signage #photography #simulation #culture #life #style
| from culture F/A/C/T/O/R/Y +82 (O)1O 2O82 2O32 |
|||||
![]() |
![]() |
![]() |
![]() |
![]() |
![]() |
'작업 > SALE & RETAIL' 카테고리의 다른 글
| 삶을 담는 그릇 (0) | 2025.10.03 |
|---|---|
| 오늘도 나는 설레이는 마음으로... (0) | 2024.02.21 |
| 천.하.삼.분.지.계. 는 진리 인가요? (0) | 2024.02.17 |
| 이건 머 다이어트의 적 아닌가 싶습니다. (0) | 2022.04.15 |





