*아직 마치지 못한 블로그 이동 작업 포스팅 입니다.
*기존의 블로그에 있던 내용을 그대로 옮겨오기 때문에 씌여있는 글과 상황이 맞지 않을 수 있습니다.
꼬르뷔제의 작은집 연습입니다.
도면 한장 없이 만들어 가려니 여간 힘드네요.
[관련글]
2019/09/17 - [알려드려요] - [서적] 르 꼬르뷔제 | 작은집
연습 초기에 했던 작업이구요.
결과물 보다는 실무에 써먹을 수 있기 위한 방법을 탐구하고 있는 중입니다.

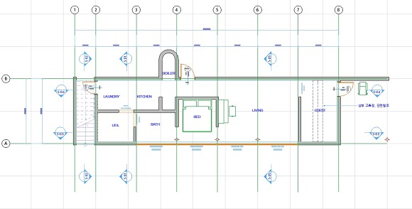
1층 평면 입니다.
스케치 그대로는 아니구요. 제가 임의변경 해버린 부분도 있습니다.
거장에게 누를 끼치는 것일까요..? ^^;;;...
거장께서 누차 강조하신 건축적 산책을 볼 수 있습니다.
사실 빌라 사보아 정도는 되야 산책했다~ 라고 말할 수 있을거 같은데.
스케일은 작지만... 여기에서도 만날 수가 있네요. ^^....

지붕입니다.
실제로 이곳은 흙을 덮어 조경처리가 되어 있지요.
건물의 에너지 효율에도 좋은 것은 알고 계시죠? ^^...

입면입니다.
그냥 글과 스케치를 토대로 작업해가다 보니 비례가 안맞는 부분이 많습니다.

아웃풋 또한 깔끔하진 않습니다.
내공 부족...

아직 여기저기 손봐야 될 곳이 많네요.

^^;;;...
저 비싼 의자를 바깥에 모셔두었습니다.
가상 이니까요..
반응형
'작업 > ETC' 카테고리의 다른 글
| [해체] OO동 해체공사 감리완료보고 (0) | 2023.01.03 |
|---|---|
| [ArchiCAD Study] 기초부 연습, 도면화 실험 (0) | 2019.10.21 |
| [BIM Study] Frank Lloyd Wright | Kaufmann House (Falling Water) (0) | 2019.10.18 |
| [Bim Study] 아키캐드 작업과정 (0) | 2019.10.18 |
| [ArchiCAD 스터디] 강남 동부금융센터 - KPF (0) | 2019.09.18 |