지난 작업은 급하게 렌더링을 위해 거쳐야 하는 부분을 넘기고 작업한 부분이 있습니다.
이번 작업은 좀 더 세부적으로 들어가 보려고 합니다.
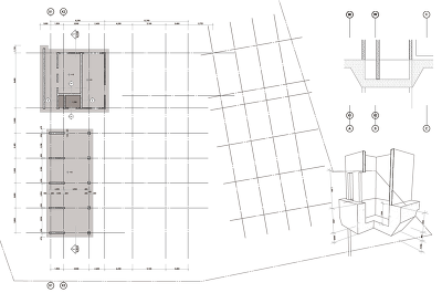
지질이 상당히 좋지않아 하부에 지정을 박아야 하는 상황이고...
그래서 지정을 포함한 실제 정보를 담기위한 작업을 해보려 합니다.

도면화에 대한 여러가지 방법들을 고민하고 있습니다.
어떤 분께서는 아키캐드를 수동카메라에 비유하셨다고 하네요.
그만큼 많은 설정들이 있어 어떻게 만져 주느냐에 따라 결과는 천차만별 인것 같습니다.
역시 많은 시행착오와 노하우의 축적이 답인것 같습니다.


도면 표기방식등이 외국과 다름에 있어 세세한 부분들을 우리의 실정(?)에 맞게 세팅 하는 것이 관건인 듯 합니다.
적절한 절충...
수용해야 할 부분들에 대한 고민들...
그래도 점점 도면처럼 보여지고 있습니다.
반응형
'작업 > ETC' 카테고리의 다른 글
| [해체] OO동 해체공사 감리완료보고 (0) | 2023.01.03 |
|---|---|
| [BIM Study] Frank Lloyd Wright | Kaufmann House (Falling Water) (0) | 2019.10.18 |
| [Bim Study] 아키캐드 작업과정 (0) | 2019.10.18 |
| [ACD Study] Le Corbusier | Une Petite Masion (0) | 2019.10.11 |
| [ArchiCAD 스터디] 강남 동부금융센터 - KPF (0) | 2019.09.18 |